ストリートビューで物件の周辺環境も確認いただけます!
| お名前 (*必須) |
|
| メールアドレス (*必須) |
|
| 電話番号 (*必須) |
|
| ご住所 | |
| お問い合わせの種類 | |
| ご要望 |
|
| ご希望の連絡方法 | |
| 具体的なご要望等 | |
| 内覧予約希望 | |
| 内覧予定希望【時間】 |
|
| 具体的なご要望等 | |
|
※ 確認画面はございません。今一度、入力内容をご確認ください。 |
|
※物件掲載内容と現況に相違がある場合は現況を優先と致します。
検討中リストへ リスト登録者: 0人
中古マンション (No. 48095 )
- 価格
- 375万円
(㎡単価 9.88万円) - 毎月のご返済額
- 10,542 円
- 管理費
- 14060円
- 修繕積立金
- 4180円
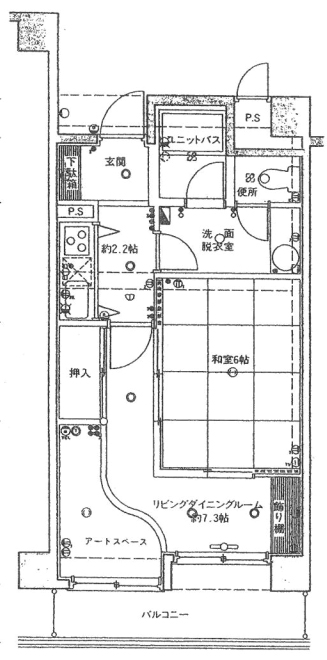
- 間取
- 1LDK
- 専有面積
- 37.97m²
|
ローンシミュレーション |
| 所在地 | 栃木県芳賀郡益子町益子 シーズ益子 |
|---|---|
| 交通 | 真岡鐵道益子駅 |
| 築年月 | 1991年04月 |
|---|---|
| 専有面積 | 37.97m² 11.49坪 |
| バルコニー | 9.42m² |
| 向き | 南 |
| 建物階数 | 地上6階 |
| 部屋階数 | 3階 |
| 総戸/区画数 | 76 |
| 建物構造 | RC |
| 現況 | 空家 |
| 用途地域 | 無指定 |
| 都市計画 | 非線引き区域 |
| 土地権利 | 所有権 |
| 状態 | 売出中 |
| 駐車場 | 1台 0円 空有 |
| 取引態様 | 専任 |
| 引渡/入居時期 | 相談 |
| 設備・条件 | プロパンガス 公営水道 排水浄化槽 エレベータ 駐輪場 地上6階建て地下1階 工房スペース有 |
| 周辺環境 |
益子小学校(約2,200 m)
益子中学校 (約1,700 m) 益子内科胃腸科850m 益子町役場2100m TSUTAYA2100m かましん2100m |
検討中リスト
ログイン後、ご利用になれます
- 一般公開物件:231件
- 会員限定物件:58件
























































