ストリートビューで物件の周辺環境も確認いただけます!
| お名前 (*必須) |
|
| メールアドレス (*必須) |
|
| 電話番号 (*必須) |
|
| ご住所 | |
| お問い合わせの種類 | |
| ご要望 |
|
| ご希望の連絡方法 | |
| 具体的なご要望等 | |
| 内覧予約希望 | |
| 内覧予定希望【時間】 |
|
| 具体的なご要望等 | |
|
※ 確認画面はございません。今一度、入力内容をご確認ください。 |
|
※物件掲載内容と現況に相違がある場合は現況を優先と致します。
検討中リストへ リスト登録者: 0人
中古住宅 (No. 27911 )
- 価格
- 4200万円
(㎡単価 35.07万円) - 毎月のご返済額
- 118,071 円
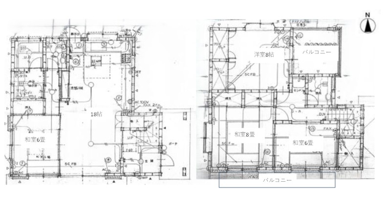
- 間取
- 4LDK
- 延床面積
- 119.75m²
|
ローンシミュレーション |
| 所在地 | 栃木県宇都宮市宿郷 5丁目 |
|---|---|
| 交通 | 芳賀・宇都宮LRT東宿郷駅 距離600m 徒歩8分 |
| 築年月 | 1998年01月 |
|---|---|
| 建物階数 | 地上2階 |
| 建物構造 | 木造 |
| 延床面積 | 119.75m² 36.22坪 |
| 現況 | 居住中 |
| 地目 | 宅地 |
| 用途地域 | 第二種住居 |
| 都市計画 | 市街化区域 |
| 土地面積 | 202.11m² 61.14坪 |
| 建ぺい率 | 60% |
| 容積率 | 200% |
| 土地権利 | 所有権 |
| 接道状況 | 一方 |
| 接道方向1 | 北 |
| 接道幅員1 | 4.0m |
| 状態 | 売出中 |
| 駐車場 | 2台 |
| 取引態様 | 仲介 |
| 引渡/入居時期 | 相談 |
| 設備・条件 | 公営水道 公共下水 オール電化 |
| 周辺環境 |
城東小学校
旭中学校 たいらや城東店(約280m) かましん駅東店(約450m) ローソン宇都宮宿郷1丁目店(約400m) 宇都宮東郵便局(約650m) 宇都宮駅東口(約900m) |
検討中リスト
ログイン後、ご利用になれます
- 一般公開物件:243件
- 会員限定物件:59件


























